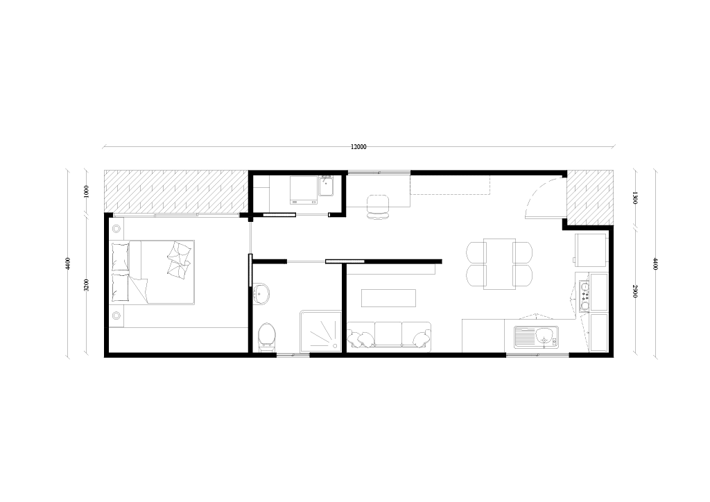
Key Details
1 Bedroom
1 Bathroom
45.6㎡ Living Area
4.8㎡ Living Area
Introducing Verde: the ideal blend of functionality and modern design. This 1-bedroom, 1-bathroom model features a cleverly integrated study nook, making it perfect for professionals or students looking for a compact living space that doesn't compromise on productivity.

