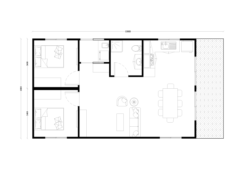
Key Details
2 Bedroom
1 Bathroom
75.8㎡ Living Area
10.6㎡ Living Area
Explore Nest: a cozy 2-bedroom, 1-bathroom home spanning 75.8 sqm, thoughtfully designed with an included laundry area to maximise convenience and comfort in a compact and efficient layout.

