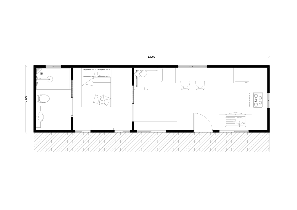
Discover the Grove One Bed
Experience Grove: a serene 1-bedroom, 1-bathroom design, thoughtfully crafted to harmonise with the landscape, perfect for those who cherish a peaceful, natural setting.
Key Details
1 Bedroom
1 Bathroom
42㎡ Living Area
12㎡ Living Area
Experience Grove: a serene 1-bedroom, 1-bathroom design, thoughtfully crafted to harmonise with the landscape, perfect for those who cherish a peaceful, natural setting

Let’s collaborate
Choose modX as your partner in modular workforce accommodation and elevate the living experience for your team. With a commitment to flexibility, comfort, sustainability, and comprehensive support, we provide solutions that go beyond traditional housing. Contact us today to explore how we can enhance the well-being and productivity of your workforce through innovative modular designs


